Používame cookies

Súbory cookie a ďalšie technológie sledovania používame na zlepšenie vášho zážitku z prehliadania našich webových stránok, na to, aby sme vám zobrazovali prispôsobený obsah a cielené reklamy, na analýzu návštevnosti našich webových stránok a na pochopenie toho, odkiaľ naši návštevníci prichádzajú. Viac info

 

Predáme hrubú stavbu 2-izbového domu v Podunajských Biskupiciach – Oblúková ulica

Ulica: Oblúková
Obec: Bratislava-Podunajské Biskupice
Okres: Bratislava II
Kraj: Bratislavský kraj
Druh: Domy
Typ: Predaj
Typ domu: Rodinný dom
199 000 €

Popis nehnuteľnosti

Predáme hrubú stavbu 2-izbového domu v Podunajských Biskupiciach – Oblúková ulica

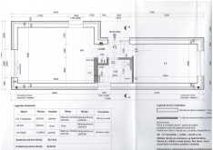
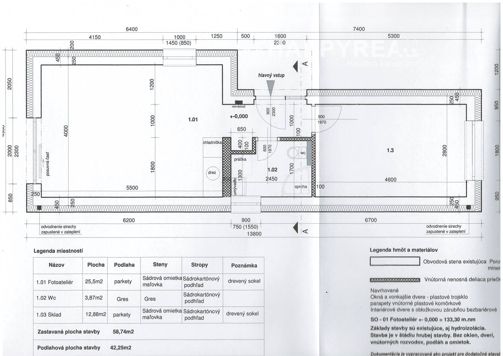
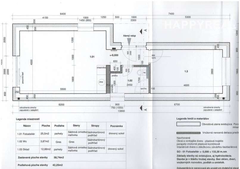
Ponúkame na predaj hrubú stavbu 2-izbového domu nachádzajúcu sa v mestskej časti Podunajské Biskupice na Oblúkovej ulici. Stavba je realizovaná na pozemku s výmerou 209 m² a disponuje prípojkami na elektrinu, vodu a kanalizáciu.

Zastavaná plocha domu je 58,74 m², úžitková plocha 42,25 m². Objekt je v súčasnosti vedený ako fotoateliér. Hrubá stavba je murovaná z tehly a zastrešená.

Na pozemku je plánované parkovanie pre dve osobné autá, vstup na pozemok je riešený posuvnou bránou.

Kontakt:
p. Thuringer
📞 0903 905 065

Vlastnosti

Status:
aktívne
Vlastníctvo:
osobné
Plocha pozemku:
209 m2
Typ zeme:
mierne svahovitá
Úžitková plocha:
42.25 m2
Podlahová plocha:
42.25 m2
Stav:
Vo výstavbe
Počet izieb:
2
Typ budovy:
tehla
Celková plocha:
42.25 m2
Status:
aktívne
Vlastníctvo:
osobné
Plocha pozemku:
209 m2
Typ zeme:
mierne svahovitá
Úžitková plocha:
42.25 m2
Podlahová plocha:
42.25 m2
Stav:
Vo výstavbe
Počet izieb:
2
Typ budovy:
tehla
Celková plocha:
42.25 m2

Informatívna úverová kalkulačka

Pozrieť na mape

Maklér

Thüringer Viliam

Thüringer Viliam

konateľ spoločnosti

Radi Vám poradíme

Podobné nehnuteľnosti